狛江の地で63年営業しています。小田急線、狛江市、調布市近辺の不動産の売買・賃貸の事なら、狛江の地を知り尽くした藤田不動産株式会社にお任せ下さい。

イエステーション

藤田不動産株式会社

宅地建物取引業免許東京都知事(16)第8307号

〒201-0003 東京都狛江市和泉本町1-2-8

定休日:毎週火・水曜日 営業時間:9時30分~18時

宅地建物取引業免許東京都知事(16)第8307号

新着物件情報

【売買物件】狛江市岩戸南一丁目売戸建

2025/08/02

【物件概要】
■土地権利:所有権
■敷地面積:公簿116.96平米(約35.38坪)
■地目:宅地
■地勢:平坦
■接面道路:公道
■接面方位:東側
■道路幅員:4m
■道路舗装:完全舗装
■建物面積:169.97平米(約51.41坪)
■建ぺい率:40%
■容積率:80%
■用途地域:第一種低層住居専用地域
■高度地区:第一種高度地区
■防火地域:法22条区域
■都市計画:市街化区域
■設備:公営水道、都市ガス、公共下水
■引渡日:即日
■現況:空家
■備考
(1)建ぺい率および容積率が超過しており、同規模の建物は建築できません。
(2)建物の契約不適合責任免責とします。

【周辺施設】
■トイボックス狛江園(保育園):徒歩8分(約630m)
■狛江みずほ幼稚園:徒歩13分(約990m)
■市立狛江第三小学校:徒歩5分(約400m)
■市立狛江第二中学校:徒歩5分(約360m)
■狛江岩戸南郵便局:徒歩5分(約340m)
■岩戸第三児童遊園:徒歩4分(約280m)
■Odakyu OX狛江店:徒歩9分(約700m)
■京王ストア駒井店:徒歩10分(約790m)
■JAマインズ狛江支店:徒歩7分(約510m)
■ファミリーマート狛江東和泉店:徒歩4分(約250m)

【おススメポイント】
■小・中学校まで徒歩5分
■大型間取りの二世帯住宅
■南側隣地通路につき日照良好
■旧小田急分譲地内の一戸建

所在地 狛江市岩戸南一丁目
交通 小田急線「狛江」駅徒歩8分
価格 ¥48,800,000円 管理費・修繕積立金
種別 売家 築年月 平成3年7月
構造 木・鉄筋コンクリート造スレート葺 建物階建て・所在階 地下1階付2階建
間取り 3SLDK+2SLDK 専有面積
駐車場 有り 担当 藤田
取引態様 専任媒介 その他

  • 閑静な住宅街の一角にある住戸です。

  • 嬉しい前面道路は公道です。

  • ゆとりのある169平米の床面積が特徴の一戸建て

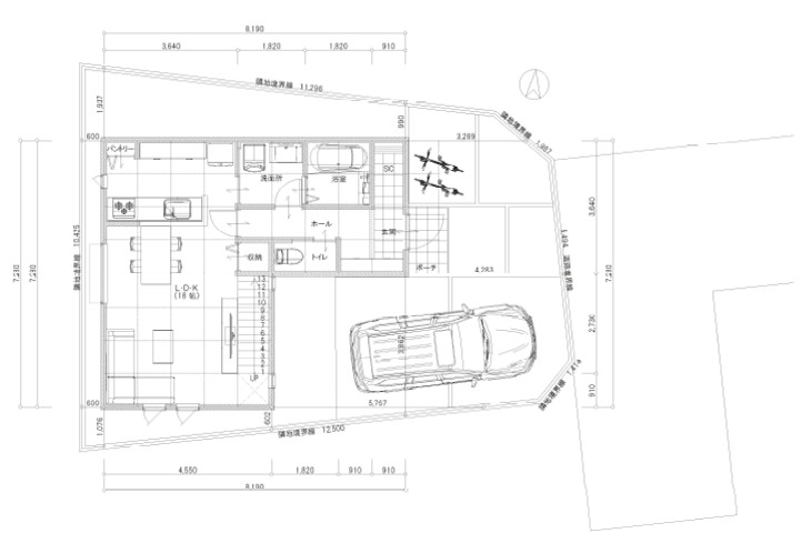
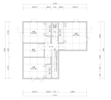
  • 参考プラン(完成予定図)アキュラホームさんの注文住宅となります。本プランでは3SLDKの間取りとなり、請負金額は約3,650万円となります。

  • 参考プラン 1階平面図(46.37平米)

  • 参考プラン 2階平面図(45.54平米)
イエステーション

〒201-0003 東京都狛江市和泉本町1-2-8

定休日:毎週火・水曜日 営業時間:9時30分~18時

宅地建物取引業免許東京都知事(16)第8307号

藤田不動産株式会社の物件取扱エリア
狛江市和泉本町、狛江市猪方、狛江市岩戸北、狛江市岩戸南、狛江市駒井町、狛江市中和泉、狛江市西和泉、狛江市西野川、狛江市東野川、狛江市東和泉、狛江市元和泉、世田谷区喜多見
藤田不動産株式会社の取扱業務
不動産売買の仲介、中古マンション売買の仲介、新築一戸建売買の仲介、中古一戸建売買の仲介、土地売買の仲介、新築アパート売買の仲介、中古アパート売買の仲介、不動産賃貸の仲介、マンション賃貸の仲介、アパート賃貸の仲介、一戸建賃貸の仲介、貸家の仲介、倉庫賃貸の仲介、貸倉庫の仲介、トランクルーム賃貸の仲介、貸トランクルームの仲介、月極駐車場賃貸の仲介、マンション賃貸の管理、アパート賃貸の管理、一戸建賃貸の管理、貸家の管理、月極駐車場賃貸の管理、不動産コンサルティング、不動産相続アドバイザー
取り扱い可能なマンション
詳しくはコチラ