狛江の地で63年営業しています。小田急線、狛江市、調布市近辺の不動産の売買・賃貸の事なら、狛江の地を知り尽くした藤田不動産株式会社にお任せ下さい。
【物件概要】
■土地権利:所有権
■地目:宅地
■用途地域:第一種中高層住居専用地域
■建ぺい率:60%
■容積率:200%
■防火指定:準防火地域
■高度地区:20m第一種高度地区
■日影規制:3.0h-2.0h/4m
■その他法令上の規制:景観法、盛土規制法
■接面道路:北側道路事業予定地の一時使用の認可により、幅員約13.6~14.0m公道に接道。
都市計画道路事業完了後、幅員16.0m公道にCourtAは約5.6mに接道。
■現況:建築中
■引渡日:相談
■総戸数:2戸
■販売戸数:2戸
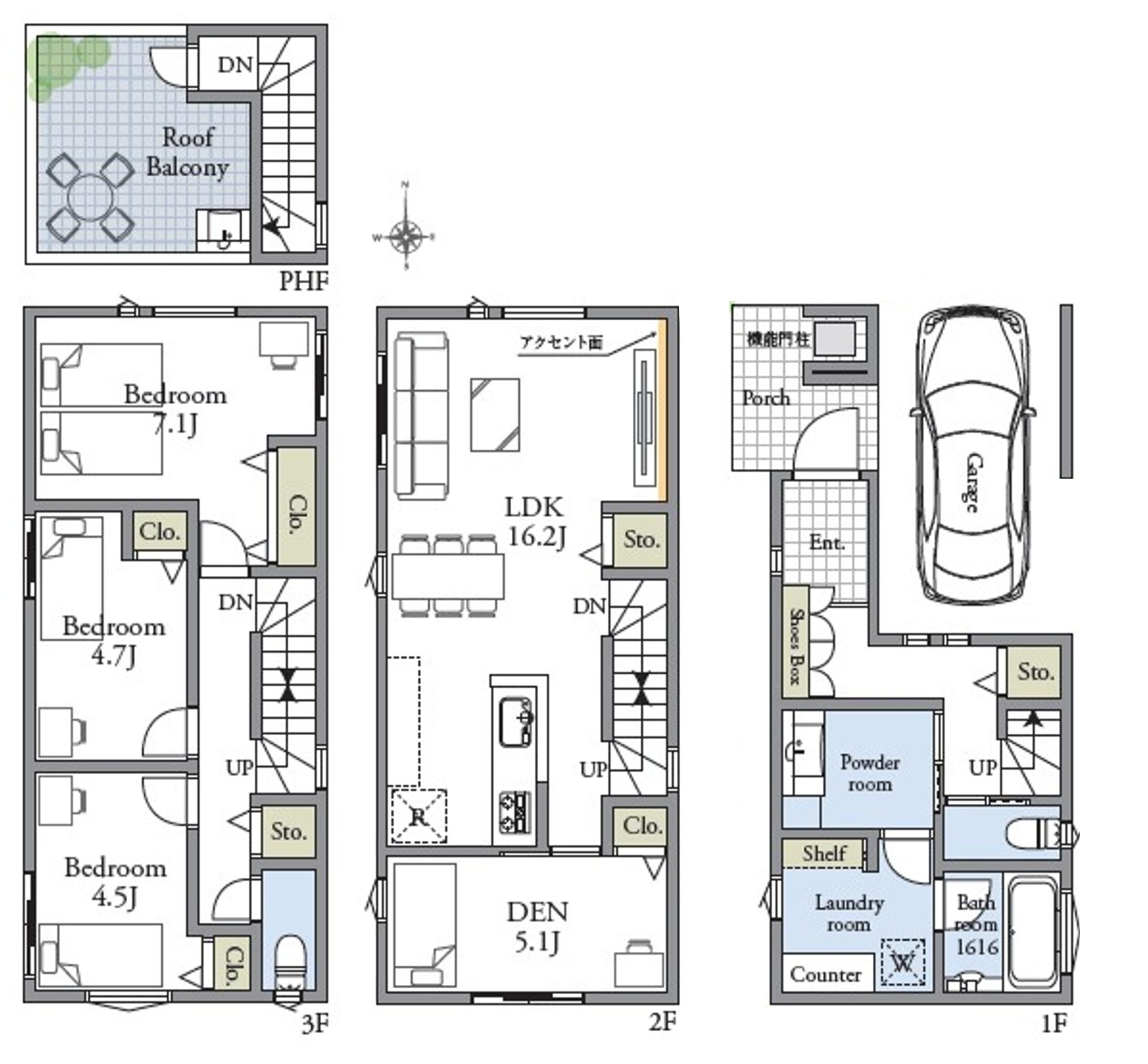
■建築確認番号 Court.A:第25UDI1K建00760号
■敷地面積 Court.A:59.44平米(約17.98坪)
■延床面積
Court.A:121.08平米(約36.62坪)1階39.12平米-2階39.12平米-3階39.12平米-ペントハウス面積3.72平米※車庫面積12.42平米含む
■備考:司法書士は売主の指定となります。
【周辺施設】
(1)駅・バス停
■小田急線「狛江」駅:徒歩11分(約880m)
■小田急線「和泉多摩川」駅:徒歩12分(約900m)
■「狛江駅南口」行「狛江第二中学校」バス停:徒歩1分(約70m)
■「二子玉川駅」行「狛江銀座」バス停:徒歩8分(約600m)
(2)商業施設
■ファミリーマート小浦駒井町一丁目店:徒歩5分(約350m)
■京王ストア駒井町店:徒歩6分(約470m)
■スーパー三和狛江店:徒歩9分(約700m)
■ココカラファイン薬局狛江店:徒歩11分(約810m)
■OdakyuOX狛江店:徒歩12分(約890m)
■ニューヤヒロ和泉多摩川店:徒歩12分(約940m)
■ヤマダ電機テックランド狛江店・ニトリ狛江世田谷通り店:徒歩13分(約1010m)
■オーケー狛江中和泉店:徒歩23分(約1840m)
(3)教育施設
■狛江第六小学校(学区):徒歩8分(約630m)
■狛江第二中学校(学区):徒歩2分(約130m)
■駒井保育園:徒歩9分(約650m)
■ぎんきょう保育園:徒歩10分(約730m)
■狛江みずほ幼稚園:徒歩10分(約780m)
(4)医療機関
■狛江なのはな内科クリニック:徒歩7分(約510m)
■小幡医院:徒歩10分(約800m)
■東京多摩病院:徒歩10分(約780m)
■こしじまクリニック:徒歩11分(約820m)
■狛江市一の橋内科・循環器内科:徒歩11分(約840m)
■和泉多摩川クリニック:徒歩11分(約870m)
■ファミリークリニックはら:徒歩14分(約1060m)
■川崎市立多摩病院:徒歩30分(約2340m)
■東京慈恵会医科大学附属第三病院:徒歩33分(約2620m)
(4)金融機関
■狛江岩戸南郵便局:徒歩6分(約420m)
■三菱UFJ銀行ATMコーナー狛江駅:徒歩11分(約870m)
■みずほ銀行狛江支店:徒歩13分(約970m)
(5)公園・レジャー施設
■駒井・上村中ひだまり公園:徒歩5分(約340m)
■清水川公園:徒歩6分(約410m)
■泉龍寺弁財天池:徒歩13分(約980m)
■多摩川緑地公園:徒歩13分(約1030m)
■泉龍寺:徒歩13分(約1040m)
■喜多見氷川神社:徒歩14分(約1060m)
■喜多見公園:徒歩15分(約1150m)
■狛江市立古民家園:徒歩18分(約1440m)
■次大夫堀公園:徒歩24分(約1900m)
(6)公共施設
■狛江消防署猪方出張所:徒歩2分(約140m)
■猪方交番:徒歩6分(約480m)
■南部地域センター:徒歩9分(約700m)
■エコルマホール:徒歩12分(約920m)
■狛江市役所:徒歩14分(約1090m)
(7)スポット
■多摩水道橋:徒歩16分(約1260m)
【おススメポイント】
■都市通勤の利便性と落ち着いた住環境のバランス
■洗練されたデザインと機能的な間取り
■ペントハウスから広がる富士の光景
| 所在地 | 狛江市猪方二丁目 | ||
|---|---|---|---|
| 交通 | 小田急線「狛江」駅徒歩11分・「和泉多摩川」駅徒歩12分 | ||
| 価格 | ¥70,800,000円(税込) | 管理費・修繕積立金 | なし |
| 種別 | 新築住宅 | 築年月 | 令和8年1月(予定) |
| 構造 | 木造 | 建物階建て・所在階 | 3階建 |
| 間取り | Court.A:3SLDK+ランドリ―ルーム | 専有面積 | ー |
| 駐車場 | ビルトインガレージ(1台) | 担当 | 鮫島 |
| 取引態様 | 専任媒介 | その他 | ー |





